시설현황

Home>대전보훈병원>시설현황

프린트

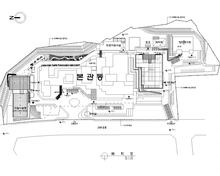
가. 시설개요

  • 병 상 수 : 384병상(국비 273, 사비 111)
  • 부지면적 : 117,687㎡(35,662평)
  • 대지면적 : 40,944㎡(12,385.5평)
  • 건물면적 : 38,541㎡(11,679평)
  • 시설규모 : 본관(지하 1층, 지상 5층), 장례식장, 보장구센터, 의료지원시설, 창고, 재활체육센터,주차건물
  • 공사기간
    • 본 관 등 : 1995. 3.15. ~ 1997. 9. 4.
    • 의료지원시설 : 2000. 6. 5. ~ 2001. 3. 31.
    • 재활체육센터 : 2004. 12. 10. ~ 2005. 8. 17.
    • 주 차 장 : 2014. 1.~2014. 9

나. 시설배치

평면도